【設計信息】?
?項目地點| Project location無錫太湖如院
設計風格| Design Style:待定
面 積 | Square Meter :261㎡
設 計 師|無錫紫蘋果別墅裝修蔡老師
------------------------------------------------
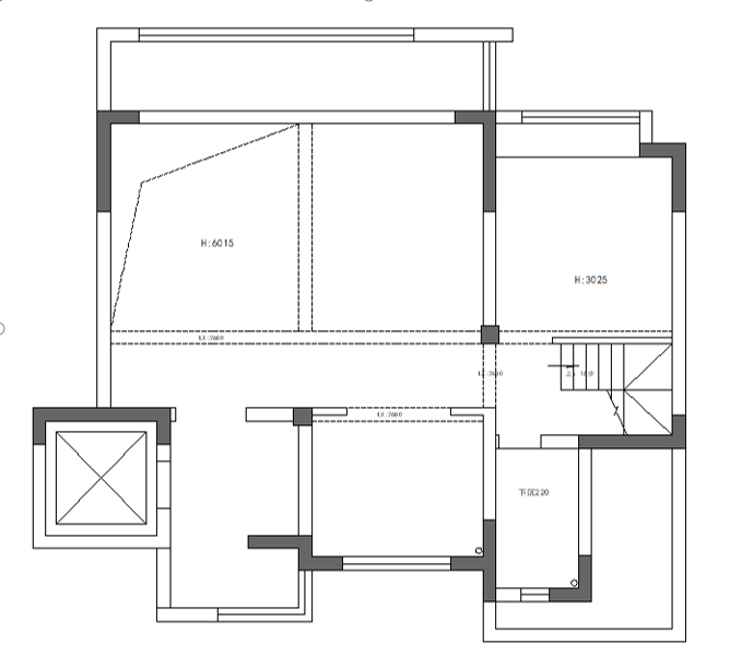
此戶型原始結構比較方正,這個客戶的一樓沒有大動,保留了原始,陽臺打通做了休閑晾曬區(qū)域,u型中廚設計,空間足夠大,可以進行美食烹飪,老人房也設計在了一樓
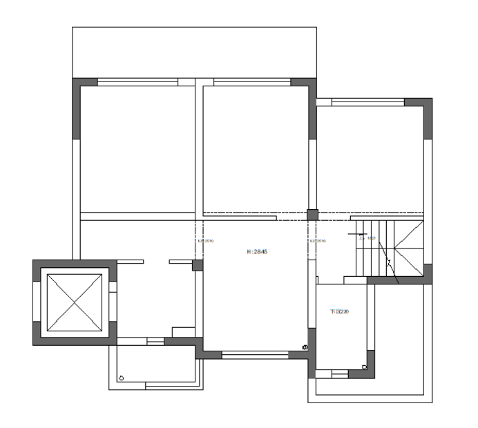
二樓我們設計了兩個臥室,東南面是一個主人的大套房,雙臺盆衛(wèi)浴都齊全,還有設計一個大浴缸,外面的區(qū)域大多做了休閑娛樂,應主人的要求安排了書房,南面另一個次臥可以做客房或者兒童房。
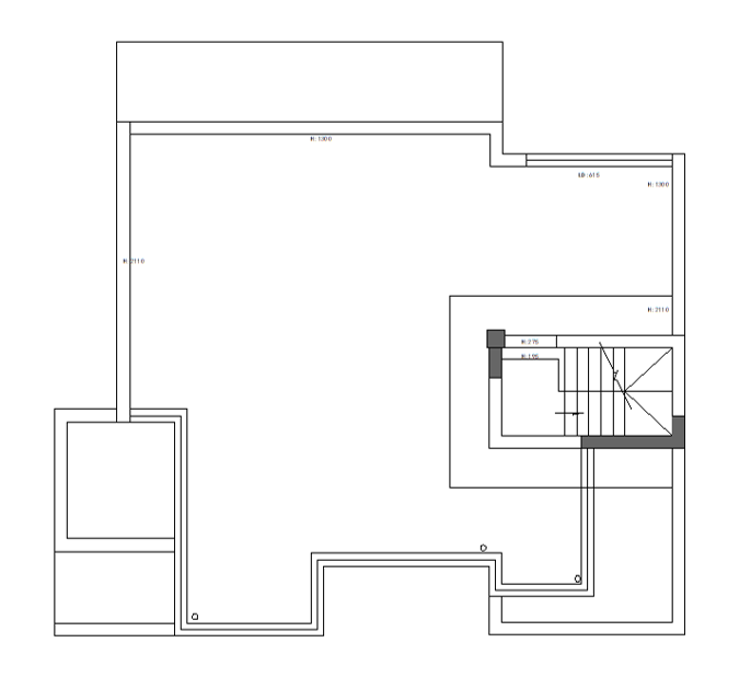
露臺就設置了休閑區(qū),和生活晾曬,閑暇之余喝喝茶和朋友討論很是愜意!






最新文章
紫蘋果聲明:
Copyright 2020 m.derny.cn All Rights Reserved. 蘇ICP備18037275號-2
蘇公網安備32021302002167 上海紫蘋果裝飾有限公司無錫第一分公司版權所有
紫蘋果國際設計-品質贏得口碑